Homes | Vogue II 28573L
Property map Enter your address or APN to check if this home fits on your property
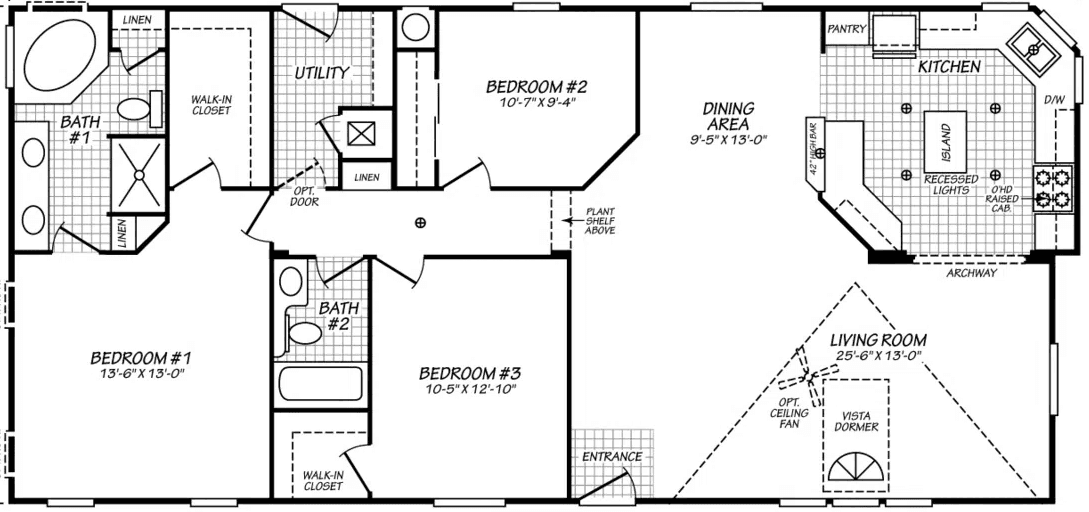
3 bedrooms
2 full bathrooms
1,510 sq. ft.
26' 8" x 57' 4"
Vogue II standard features
Mechanical
100 AMP Service Interior Panel Box 40 Gal. Gas Water Heater & 56 BTU Furnace Plumb/Wire for Washer & Gas Dryer Rocker Switches T/O Dual USB Recept- Kitchen Shut Off Valves T/O Toe Kick Registers in Wet Areas (1) Wire & Brace
100 AMP Service Interior Panel Box 40 Gal. Gas Water Heater & 56 BTU Furnace Plumb/Wire for Washer & Gas Dryer Rocker Switches T/O
Dual USB Recept- Kitchen Shut Off Valves T/O Toe Kick Registers in Wet Areas Pacifica Homes, Inc.
Affordable homes at your fingertips
Get started with Pacifica Homes, Inc.
Find, design, and order your next home in a few clicks.
Sign up Dealer License #: DL1228794
|
3 bedrooms
2 full bathrooms
1,510 sq. ft.
26' 8" x 57' 4"
(1) Wire & Brace Exterior
Insulation: R 28-11-11 Plant-on Dormer (model specific) 4” Choice Window Trim T/O 10” Choice Trim Fascia Front Eyebrow, Col., and Lap (model specific) LP Smart Vertical Siding 9’ sidewalls with Flat Ceiling * Transom Windows Throughout * Roof Pitch 3:12 (2:12 on triple section homes) 20LB Roof Load 12" Front and Rear Overhang Trimline Ventilated Roof System Front Airfoil
Insulation: R 28-11-11 Plant-on Dormer (model specific) 4” Choice Window Trim T/O 10” Choice Trim Fascia Front Eyebrow, Col., and Lap (model specific) LP Smart Vertical Siding 9’ sidewalls with Flat Ceiling *
Transom Windows Throughout * Roof Pitch 3:12 (2:12 on triple section homes) 20LB Roof Load 12" Front and Rear Overhang Trimline Ventilated Roof System Front Airfoil Interior
Knockdown Ceiling Tape and Texture T/O & Bullnose Corners Alt. 2”Faux Wood Blinds T/O (Standard Height) 2” Door Casing & Baseboard Molding Upgrade Carpet Pad 25oz. Carpet – Shake It Up Wood Shelves with Rod in Closets Linoleum Entry (4) 4” LED Can Lights Craftsman Style Front Entry Door 36” 9-Lite Inswing Rear Door Vinyl D/G, Low-E, Tempered Glass Windows T/O 2-Panel Interior Doors T/O Furnace Door –Louvered Ventilated Window – Both Baths (3) Mortised Hinges & Lever Interior Handles 2-Panel Sliding Wardrobe Doors (model specific) Laminate C-Tops T/O Straight Hardwood Panel Cabinet Doors Drawers over Doors Drawer Bank – Kitchen & Master Bath (4) 2 Door O/H Utility w/ Shelf & Pole Lip Molding Under Overhead Cabinets 24” Deep Cabinet over Refrigerator White Lined Base and Overhead Cabinets Crown & Lip Molding - Overhead Cabinets Nickel “Bar” Cabinet Pulls Concealed Soft-Close Cabinet Door Hinges Side-mount Drawer Guides Adjustable Shelves on All Kitchen Overheads
Knockdown Ceiling Tape and Texture T/O & Bullnose Corners Alt. 2”Faux Wood Blinds T/O (Standard Height) 2” Door Casing & Baseboard Molding Upgrade Carpet Pad 25oz. Carpet – Shake It Up Wood Shelves with Rod in Closets Linoleum Entry (4) 4” LED Can Lights Craftsman Style Front Entry Door 36” 9-Lite Inswing Rear Door Vinyl D/G, Low-E, Tempered Glass Windows T/O 2-Panel Interior Doors T/O Furnace Door –Louvered Ventilated Window – Both Baths
(3) Mortised Hinges & Lever Interior Handles 2-Panel Sliding Wardrobe Doors (model specific) Laminate C-Tops T/O Straight Hardwood Panel Cabinet Doors Drawers over Doors Drawer Bank – Kitchen & Master Bath (4) 2 Door O/H Utility w/ Shelf & Pole Lip Molding Under Overhead Cabinets 24” Deep Cabinet over Refrigerator Bathroom
Glamour Bath w/ Oval Drop-in Tub & 48" Shower Ceramic 4" B/splash (Includes tub deck if applicable) Mirrored Medicine Cabinet Porcelain Lavy Bowl Single Lever Faucet & Diverter - Nickel Nickel Towel Bar & Tissue Holder Elongated Raised Toilet 36” High Vanity (2) 4” LED Can Lights Exhaust Fan Ceramic 4" B/splash Mirrored Medicine Cabinet Porcelain Lavy Bowl Single Lever Faucet & Diverter - Nickel 1-Pc 60" Molded Fiberglass Tub/Shower Nickel Towel Bar & Tissue Holder
Glamour Bath w/ Oval Drop-in Tub & 48" Shower Ceramic 4" B/splash (Includes tub deck if applicable) Mirrored Medicine Cabinet Porcelain Lavy Bowl Single Lever Faucet & Diverter - Nickel Nickel Towel Bar & Tissue Holder Elongated Raised Toilet 36” High Vanity
(2) 4” LED Can Lights Exhaust Fan Ceramic 4" B/splash Mirrored Medicine Cabinet Porcelain Lavy Bowl Single Lever Faucet & Diverter - Nickel 1-Pc 60" Molded Fiberglass Tub/Shower Nickel Towel Bar & Tissue Holder Kitchen
8" Stainless Steel Sink Full Height Ceramic Tile Backsplash Full Height Ceramic Tile Backsplash-Behind Range Stainless Steel Gas Freestanding Range w/ Range Hood Stainless Steel Microwave Range Hood Stainless Steel Dishwasher Stainless Steel 25 CF SxS Refer w/Ice and Water Dispenser Faucet w/Pullout Spout Garbage Disposal
8" Stainless Steel Sink Full Height Ceramic Tile Backsplash Full Height Ceramic Tile Backsplash-Behind Range Stainless Steel Gas Freestanding Range w/ Range Hood Stainless Steel Microwave Range Hood
Stainless Steel Dishwasher Stainless Steel 25 CF SxS Refer w/Ice and Water Dispenser Faucet w/Pullout Spout Garbage Disposal
Insulation: R 28-11-11 Plant-on Dormer (model specific) 4” Choice Window Trim T/O 10” Choice Trim Fascia Front Eyebrow, Col., and Lap (model specific) LP Smart Vertical Siding 9’ sidewalls with Flat Ceiling * Transom Windows Throughout * Roof Pitch 3:12 (2:12 on triple section homes) 20LB Roof Load 12" Front and Rear Overhang Trimline Ventilated Roof System Front Airfoil
Insulation: R 28-11-11 Plant-on Dormer (model specific) 4” Choice Window Trim T/O 10” Choice Trim Fascia Front Eyebrow, Col., and Lap (model specific) LP Smart Vertical Siding 9’ sidewalls with Flat Ceiling *
Transom Windows Throughout * Roof Pitch 3:12 (2:12 on triple section homes)
White Lined Base and Overhead Cabinets
Crown & Lip Molding - Overhead Cabinets
Nickel “Bar” Cabinet Pulls
Concealed Soft-Close Cabinet Door Hinges
Side-mount Drawer Guides
Adjustable Shelves on All Kitchen Overheads
20LB Roof Load
12" Front and Rear Overhang
Trimline Ventilated Roof System
Front Airfoil
Images of homes are solely for illustrative purposes and should not be relied upon. Images may not accurately represent the actual condition of a home as constructed, and may contain options which are not standard on all homes.
3 Bed | 2 Bath | 1,510 Sq. Ft. | 26' 8" x 57' 4"
Vogue II 28603M 3 Bed | 2 Bath | 1,600 Sq. Ft. | 26' 8" x 60'
Coronado 28603M 3 Bed | 2 Bath | 1,520 Sq. Ft. | 26' 8" x 60'
Coronado 28603F 3 Bed | 2 Bath | 1,600 Sq. Ft. | 26' 8" x 60'