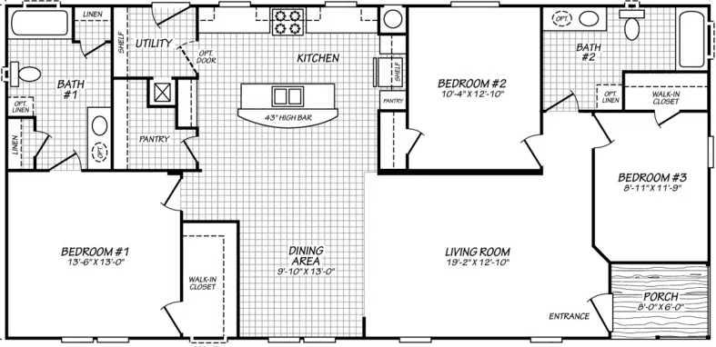
Homes | Canyon Lake 28563G